Unsere Projekte
Villa Straßlach – Straßlach
| Status: | Projektentwicklung |
| Ort: | Straßlach |
| BGF: | 400 m² |
| LP: | 1 - 5 |
| Jahr: | 2023 |
Moderne Villenarchitektur , Tradition und Fortschritt, sind Grundlage dieses Entwurfes. Großzügige Raumgestaltung, lichtdurchflutete Räume und die gewisse Portion Individualismus spiegeln sich in dem Entwurf wieder. Privatsphäre und Freiraum sind ebenso wichtig und können mit dem Raumprogramm abgedeckt werden. Oberhalb der Tiefgarage erstreckt sind ein großer Garten mit unverbaubarem Blick. Das Obergeschoss ist ganz dem Privaten gewidtmet und bedient die Wünsche der Bewohner*innen.
Visualisierung: a.s.m.d Andreas Schiebel
SilverLeaf – München
| Status: | Realisiert |
| Ort: | München |
| BGF: | 900 m² |
| LP: | 1 - 5 |
| Jahr: | 2024 |
Eine Wohnanlage im klassischen Stil ist die Grundlage für dieses Bauvorhaben.
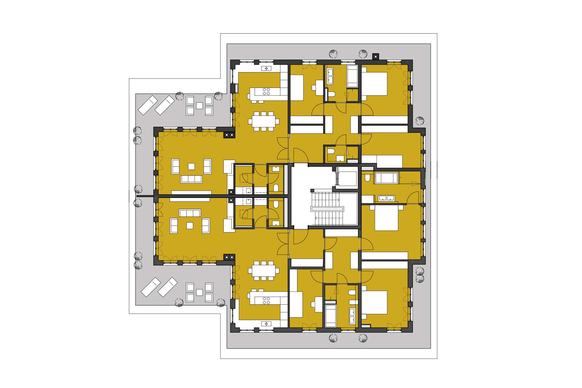
Inmitten einer gewachsenen Siedlungsstruktur im Süd-Westen von München entsteht eine kleine Wohnanlage, bestehend aus einem Mehrfamilienwohnhaus mit 5 Wohneinheiten und zwei Doppelhaushälften. Maximale Grünflächen und Gartenflächen sind Ziel der Gestaltung. So wurden alle notwendigen PKW-Stellplätze in eine gemeinsame Tiefgarage gelegt.
Die Gebäude werden in massiver ökologischer Ziegelbauweise erstellt und erfüllen energetisch den KFW Stand. Lichtdurchflutete Räume mittels bodentiefer Fenster und eine offene Grundrissgestaltung bieten ein modernes Wohnen.
Visualisierung: a.s.m.d Andreas Schiebel
Villa M – Straßlach
| Status: | Realisiert |
| Ort: | Straßlach |
| BGF: | 300 m² |
| LP: | 1 - 5 |
| Jahr: | 2023 |
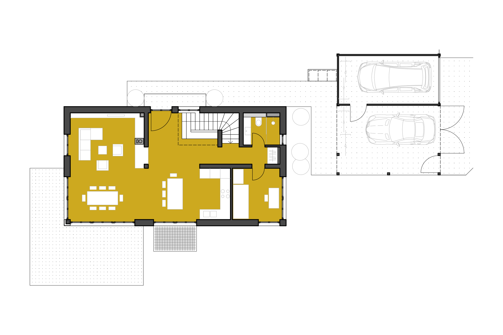
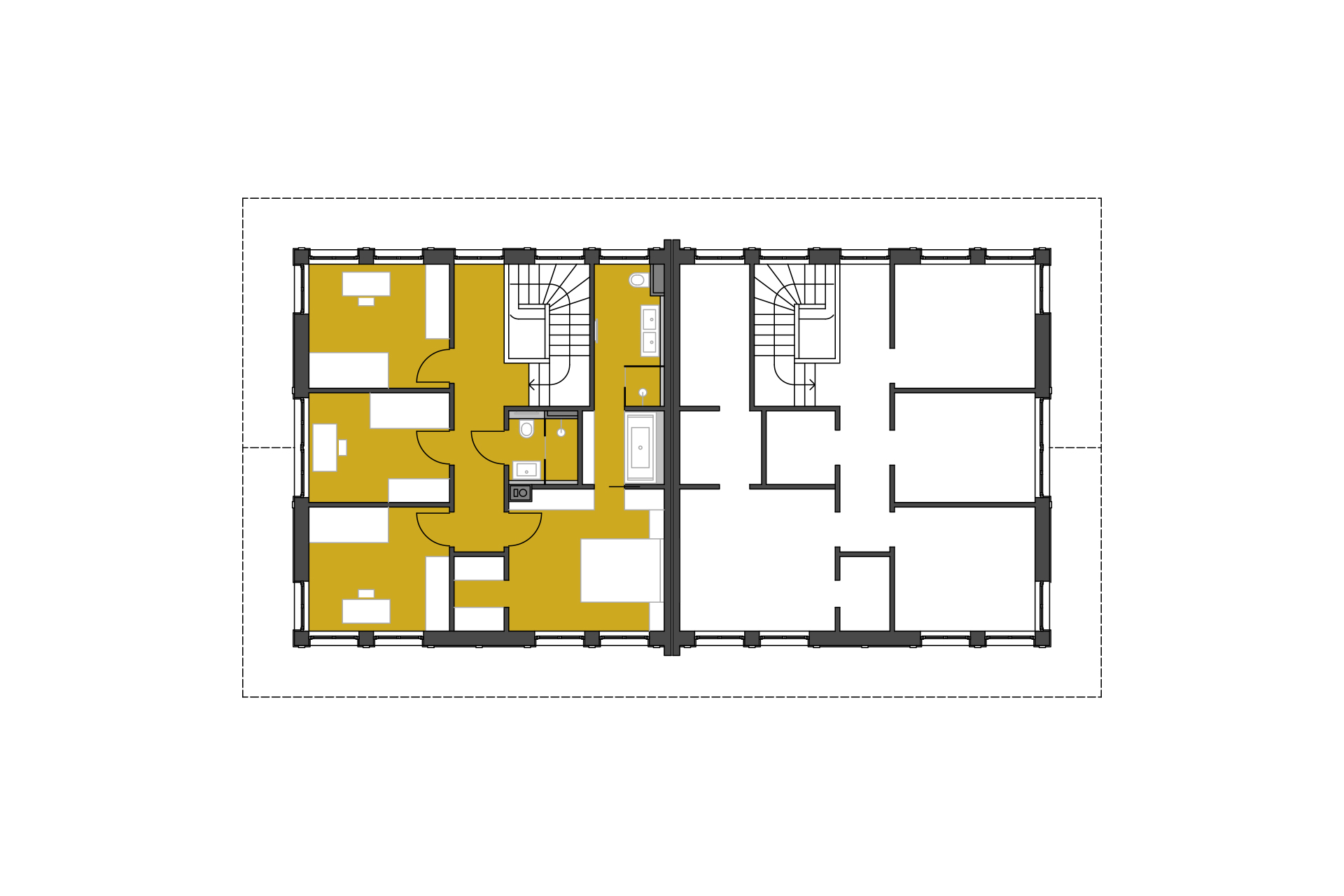
Im Münchner Süden entsteht eine Villa im gehobenen modernen Stil. Das weit auskragende Dach und die Holzelemente sind Zitate aus der Umgebung und fügen das Gebäude stilvoll darin ein. Das Gebäude ist in Massivbauweise erstellt. Zum Empfangen von Besuch und als Wohnebene ist das Erdgeschoss über die großen Fenster zum Garten hin mit diesem verbunden. Die großen Hebe-Schiebetüren erlauben die direkte ebenerdige Verbindung. Der auskragende Balkon fungiert als Wetterschutz und Vermittler zwischen drinnen und draußen. Das oberste Stockwerk ist ganz dem Privaten gewidtmet. Der Balkon mit seiner geschlossenen Brüstung sorgt hier für die geforderte Geschütztheit, durch die bodentiefen Fenster kann der Blick aber von drinnen ungestört in die Ferne schweifen. Die Raumhöhen sind in allen Geschossen überhoch. Im obersten Stockwerk ist die Höhe nur durch das Dach begrenzt, so dass hier Raumhöhen bis 4,20m möglich sind. Die Pfetten sind sichtbar, der Dachstuhl wird im Inneren oberhalb der Fußpfetten nur durch Glaswände begrenzt, was zu einer großen Leichtigkeit führt.
Visualisierung: a.s.m.d Andreas Schiebel
T5 – Straßlach
| Status: | Realisiert |
| Ort: | Straßlach |
| BGF: | 800 m² |
| LP: | 1 - 9 |
| Jahr: | 2024 |
Tradition und Moderne sind die Leitgedanken dieses Bauvorhabens.
Im Zentrum von Straßlach auf einer Fläche von ca.1800 m² entsteht ein neues Ensemble aus zwei Einfamilienhäusern und vier Doppelhaushälften.
Das zurzeit bestehende Gebäude aus den 60igern Jahren wird abgebrochen und ermöglicht eine Neugestaltung in der Ortsmitte. Jedes Gebäude steht für sich und ist doch eingebunden in seine Umgebung. Klassische Gebäudeformen, als einfache rechteckige Baukörper, traditionelle Dachüberstände und Baumaterialien, wie verputztes Mauerwerk und Holzverschalungen, geben den neuen Häusern ihre Ästhetik.
Im Inneren der Gebäude ist die Grundrissgestaltung offen und lichtdurchflutet und spiegelt die Anforderungen des modernen Wohnens wider. Eine gemeinsame Tiefgarage ermöglicht maximale Grünflächengestaltung ohne störende Garagenanlagen an der Oberfläche.
Visualisierung: a.s.m.d Andreas Schiebel
Quartett Hugo – Straßlach
| Status: | Realisiert |
| Ort: | Straßlach |
| BGF: | 800 m² |
| LP: | 1 - 9 |
| Jahr: | 2024 |
Den auf dem Grundstück vorhandenen alte Baumbestand gilt es zu erhalten, so dass sich die neue Bebauung in massiver Ziegelbauweise sanft dazwischen einfügen muss. Die Grundrisse der vier Einfamilienhäuser ähneln sich, schaffen durch die unterschiedliche Anordnung und Ausrichtung aber individulle Rückzugsräume und eigene Plätze. Die Garagen dienen dabei als Spange zwischen den Gebäuden, schaffen eine Verbundenheit und zugleich die Trennung. Die privaten Rückzugsräume liegen dabei immer auf der zum Nachbargebäude abgewandten Seite, so dass die Privatsphäre gewart bleibt. Die großen Gärten liegen dabei immer in Süd-West-Ausrichtung mit Bezug zum alten Baumbestand. Im Inneren dient, als zentrales Erschließungselement im Haus, die Treppe mit Galerieebene und Luftraum, welcher sich über alle Geschosse erstreckt.
Visualisierung: a.s.m.d Andreas Schiebel
Argelsrieder32 – München
| Status: | Realisiert |
| Ort: | München |
| BGF: | 570 m² |
| LP: | 1 - 9 |
| Jahr: | 2019 |
Im Münchner Süden Forstenried entsteht ein Geschosswohnungsbau mit 11 Wohneinheiten und Tiefgarage. Die Zwei- bzw. Drei-Zimmer Apartments liegen ruhig direkt am Forstenrieder Park. Das Gebäude wird aus massiven Mauerwerkswänden erstellt. Die bodentiefen Fenster bringen viel Licht in die Räume. Jedes Apartment besitzt einen privaten Außenbereich in Form einer Terrasse, einer Dachterrasse oder eines Balkons. Die Wohnungen im Dachgeschoss erstecken sich über eine innenliegende Treppe über zwei Geschosse und bieten bei guten Wetter sogar Alpenblick.
Visualisierung: a.s.m.d Andreas Schiebel
Wohnen am Forst - Germering
| Status: | Realisiert |
| Ort: | Germering |
| BGF: | 860 m² |
| LP: | 1 - 4 |
| Jahr: | 2019 |
Westlich von München entsteht ein Geschosswohnungsbau in Holzbauweise. Ein wichtiger Punkt bei der Gestaltung war neben zurückhaltender und ästhetischer Architektur auch die durchgehende Barrierefreiheit der Wohnungen. Eine stufenlose Erreichbarkeit von allen Ebenen ist durchgehend gewährleistet. Große Schiebefenster gewähren nicht nur einen Blick in den unverbaubaren angrenzenden Forst, sondern ermöglichen auch einen schwellenlose Zugang auf die (Dach-)Terrasse. Tiefgarage und Keller werden in Beton mit außen liegender Dämmung erstellt, ab Erdreich erfolgt die Konstruktion mit vorgefertigten Holzbauwänden. Das Dach wird intensiv begrünt und eine Photovoltaikanlage ist vorgesehen, was den energetischen Fußabdruck weiter senkt.
Visualisierung: Expressiv GmbH, Wien
Villen Starnberg - Starnberg
| Status: | Projektentwicklung |
| Ort: | Starnberg |
| BGF: | 450 m² |
| LP: | 1 - 4 |
| Jahr: | 2019 |
An der Westseite des Starnberger Sees, in unmittelbarer Nähe zu Starnberg, entstehen auf einem parkähnlichen Grundstück, mit ca. 2.500 m² Fläche, zwei Villeneinheiten mit je 210 m² Wohnfläche.
Durch die Vorgabe des Bebauungsplanes mit einem sehr engen Baufeld, wurden beide Einheiten durch einen zwischenliegenden Wintergarten, sowie den Garagen getrennt.
Geprägt durch die zweigeschossigen Gebäude in der Nachbarschaft, wurde auch hier eine zweigeschossige Bauweise gewählt.
Die Villen wurden sehr lichtdurchflutet und offen in der Grundrissgestaltung entworfen.
Eine Mischung aus Stahl, Glas, Holz und Mauerwerk geben dem Gebäude das Erscheinungsbild einer modernen Villenarchitektur.
Nach Süd-Westen öffnet sich das Gebäude komplett. Die großflächige Glasfront ermöglicht den Blick in den parkähnlichen Garten und verbindet den Innenraum mit Außen.
Visualisierung: Expressiv GmbH, Wien
Villa Brixen - Brixen
| Status: | Realisiert |
| Ort: | Brixen, Österreich |
| BGF: | 450 m² |
| LP: | 1 - 4 |
| Jahr: | 2012 |
Moderne Villenarchitektur lässt sich auch im steilen Gelände darstellen.
Das Grundstück liegt an einem Nordhang, mit beeindruckendem Weitblick zum Sonnberg. Mit einer Mischung aus Mauerwerk, Naturstein, Stahl, Glas und Holz wurde hier eine zeitgenössische Villa mit Flachdach entworfen, die sich in eine anspruchsvolle topographische Lage einfügt. In der oberen Etage, mit Zugang zum oberen Garten, befindet sich der Wohn-/ Essbereich, sowie die Schlafräume mit den Bädern. Die großzügige Dachterrasse ermöglicht einen sensationellen Fernblick. Die untere Etage mit Zugang zur unteren Gartenebene beinhaltet das Schwimmbad mit Fitnessbereich. Durch den Einbau eines Liftes konnte das Gebäude mit ca. 450m² Wohnfläche barrierefrei gestaltet werden.
Visualiserung: Architekt Pöhlmann GmbH
MFH Gräfelfinger – München
| Status: | Realisiert |
| Ort: | München |
| BGF: | 1400 m² |
| LP: | 1 - 5 |
| Jahr: | 2013 |
Im Westen Münchens, in direkter Nachbarschaft zum Klinikum Hadern, entsteht ein Geschoßwohnungsbau mit sechs großzügigen Wohnungen und Stellplätzen in der Tiefgarage. Durch die Gegebenheit des Grundstücksverlaufes wurde das Gebäude mittig abgewickelt, so dass eine Südausrichtung zum Garten in allen Wohnungen ermöglicht wurde.
Das Gebiet ist mit Sattel- und Walmdächern geprägt, so wurde auch hier die Form des Walmdaches gewählt, ein Einfügen in die Nachbarbebauung wurde somit erreicht.
Visualisierung: Architekt Pöhlmann GmbH
Streberstraße – München
| Status: | Realisiert |
| Ort: | München |
| BGF: | 516 m² |
| LP: | 1 - 4 |
| Jahr: | 2017 |
"Wohnen mit Garten - Stadt - Charakter", so der Slogan für das Projekt Streberstraße im Münchner Norden. Es entstehen zwei Einfamilienwohnhäuser, in ruhiger Lage an der Allacher Lohe. Jedes Haus mit eigenem Gartenanteil und großzügig gestalteten Grundrissen. Die offenen Wohnbereichen und die bodentiefen Fenster schaffen eine direkte Verbindung zum Garten und holen viel Licht ins Innere des Gebäudes.
Die Gebäude entstehen in ökologischer Ziegelbauweise, mit dezentraler Lüftungsanlage und Luft-Wärme-Pumpe im Keller.
Visualisierung: a.s.m.d Andreas Schiebel
Leiblstraße – München
| Status: | Realisiert |
| Ort: | Neubiberg |
| BGF: | 635 m² |
| LP: | 1 - 9 |
| Jahr: | 2018 |
Die Gegend ist geprägt von Einzel - Doppel - und Reihenhäuser, welche die Grundlage zu diesem Bauvorhaben darstellen. Durch die Grundstücksform wird ein Dreispänner ermöglicht,
mit kompletter Südausrichtung. Großzügige Gartenanteile für alle Einheiten können somit dargestellt werden. Symmetrisch angeordnete Fenster und Putzstrukturen in Teilbereichen der Fassadenfläche lassen die einzelnen Hauseinheiten klar ablesen.
Visualisierung: a.s.m.d Andreas Schiebel
Pfaffensteig – Oberhaching
| Status: | Realisiert |
| Ort: | Oberhaching |
| BGF: | 550 m² |
| LP: | 1 - 9 |
| Jahr: | 2019 |
Der Münchner Süden, mit der Gemeinde Oberhaching und deren Ortsteilen wie Oberbiberg, gehört mit zu den beliebtesten Wohnorten für Familien die stadtnah leben möchten. Auf dem Grundstück, gelegen in einer gewachsenen Waldsiedlung, entstehen zwei Einfamilienwohnhäuser, die die Identität der Siedlung und den naturräumlichen Charakter beibehalten. Leitfaden des Entwurfes sind die typisch für die Region langgestreckten Baukörper mit den flach geneigten Satteldächern und deren prägnanten Dachüberständen. Das Obergeschoß erhält eine Holzverschalung mit Altholz, welches sich in den charakteristischen oberbayerischen Obergeschossen wiederfindet.
Visualisierung: a.s.m.d Andreas Schiebel
Mona-Lisa – München
| Status: | Realisiert |
| Ort: | Mona-Lisa Str. - München |
| BGF: | 975 m² |
| LP: | 1 - 9 |
| Jahr: | 2012 - 2014 |
Nah gelegen zur Messe in München - Riem liegt der Stadtteil Trudering. Durch den Strukturwandel vom ehemaligen Flughafen zum Messestandort entwickelt sich dieser Stadtteil zum begehrten innerstädtischen Wohnort. Das Gebäude bietet 5 großzügige Wohnungen mit Stellplätzen in der Tiefgarage. Die Konstruktion erfolgt in Ziegelbauweise, bodentiefe Fenster mit einer klassischen Teilung verleihen der Fassade die Unverwechselbarkeit zu einem Wohngebäude.
Visualisierung: Architekt Pöhlmann GmbH
Sommerstraße – Weßling
| Status: | Realisiert |
| Ort: | Weßling |
| BGF: | 570 m² |
| LP: | 1 - 9 |
| Jahr: | 2023 |
Weßling, umgeben vom Fünfseenland im Westen Münchens, ist ein begehrter Wohnstandort. Ein Grundstück mit leichter Hanglage und ein Bebauungsplan bilden hier die Grundlage des Entwurfes. Es entstehen zwei Doppelhaushälften die den Charakter der bayerischen Oberlandarchitektur wiederspiegeln. Ein langgesteckter Baukörper, mit flach geneigtem Satteldach und prägnantem Dachüberstand sind die Gestaltungsgrundlage dieses Projektes. ALtholzelemente im Obergeschoß spiegeln die traditionelle Bauweise wieder.
Visualisierung: a.s.m.d Andreas Schiebel
Fasaneriestr. 14 - München
| Status: | Realisiert |
| Ort: | München |
| BGF: | 5.691 m² |
| LP: | 1 - 5 |
| Jahr: | 2021 |
Das Grundstück befindet sich im dicht bebauten innerstädtischen Bereich, in Münchens anspruchsvollen Bezirk Neuhausen-Nymphenburg.
In der bisherigen Baulücke, angrenzend an drei Brandwände, existierte seit jeher lediglich eine kleinteilige Bebauung. Mit dem Neubauprojekt in der Fasaneriestraße 14 eröffnet sich uns die Möglichkeit, das städtebauliche Planungsziel aus der Epoche des Jugendstils, zur Bildung eines Gebäudekomplexes, fortzusetzen und damit etwas Besonderes zu erschaffen. Visuell angelehnt an den unverkennbaren Fassadenstil der Gründerzeit, entsteht hier ein Gebäude, das einer Synergie aus Alt und Neu gerecht wird.
Visualisierung: Minimal Group
Villa 5.1 & Villa 5.2 - Straßlach
| Status: | Realisiert |
| Ort: | Straßlach |
| BGF: | 860 m² |
| LP: | 1 - 9 |
| Jahr: | 2018 |
Hier entstehen in absolut ruhiger Lage zwei attraktive Villen, die die Formensprache der klassischen Architektur modern interpretieren. Innovativer Komfort, höchste bauliche Ansprüche sowie eine exklusive Ausstattung machen dieses Bauvorhaben zu etwas ganz Besonderem. Die helle Fassade, stilvoll gestaltet mit Holzelementen verleiht der anspruchsvollen Architektur einen modernen und dennoch in die Umgebung eingebetteten Charakter.
Durch die besonders attraktive Lage mitten im schönen Isartal an der Schwelle zum Oberland und dennoch in unmittelbarer Nähe zu München bietet Ihnen dieses Bauvorhaben ein Wohnerlebnis auf höchstem Niveau.
Die Gebäude werden in massiver Ziegelbauweise erstellt, mit bodentiefen Fenstern und einer exklusive Fassadengestaltung mit Alt-Holz-Elementen.
Visualisierung: a.s.m.d Andreas Schiebel
Fotos: andreas zitt photopgraphy
Volkart75 - München
| Status: | Projektentwicklung |
| Ort: | München |
| BGF: | 260 m² |
| LP: | 1 - 4 |
| Jahr: | 2016 |
Im beliebten Münchner Viertel Neuhausen-Nymphenburg bot sich die Gelegenheit eine großzügige Dachgeschoßwohnung mit exklusiver Dachterrasse für den Blick über München zu planen. Die bestehenden Wohnungen könnten durch die Erstellung eines Aufzugs aufgewertet und somit barrierefrei gestalltet werden. Das Dach wird neu erstellt, bleibt aber in der Kubatur erhalten. Die Aufteilung der Räume wird neu gedacht, wodurch sich ein weiträumiges Raumgefüge unter dem Dach entwickelt. Eine Freitreppe führt auf die große Dachterrasse und eröffnet den Blick über München.
Das Haus am Park - München
| Status: | Realisiert |
| Ort: | München |
| BGF: | 1.140 m² |
| LP: | 1 - 9 |
| Jahr: | 2017 |
Entspanntes Wohnen, direkt angrenzend an den für seinen Erholungswert bekannten Ostpark. Hier entsteht in ruhiger Lage ein attraktives Bauvorhaben. Neun perfekt geplante Wohnungen mit Blick an den direkt angrenzenden Park. Zu jeder Wohneinheit gehören ein eigener Garten mit Terrasse oder ein großzügiger Balkon sowie ein eigener Komfort-Stellplatz in der Tiefgarage. Jeder Stellplatz verfügt auf Wunsch über einen eigenen Stromanschluss für Elektrofahrzeuge. Die Außenwände in massivem Mauerwerk, als ökologische Bauweise mit gesundem Raumklima (kein Vollwärmeschutz).
Visualisierung: Architekt Pöhlmann GmbH
Landshuter Allee - München
| Status: | Projektentwicklung |
| Ort: | München |
| BGF: | 82.000 m² |
| LP: | - |
| Jahr: | 2014 |
Die Landshuter Allee ist eine der meist befahrenen Straßen in München. Sie ist Lebensader und Konfliktgebiet zugleich, ist sie doch umgeben von überwiegend Wohnungsbau. Eine Idee den Mangel an Wohnung zu bekämpfen und zugleich die Qualität von Grünraum und Naherholung zu erhöhen stellt das Projekt "Landshuter Allee" da.
Die Idee ist den Verkehr auf etwa 1,5km Länge in den Untergrund zu verbannen und darüber 1130 neue Wohnungen entstehen zu lassen, darunter 500 Sozialwohnungen, Kindergärten und Grünanlagen. Das gesamte Gebiet würde dadurch eine enorme Aufwertung erhalten.
Artikel in der SZ vom 06. Mai 2014:
https://www.sueddeutsche.de/muenchen/landshuter-allee-spektakulaeres-wohnprojekt-1.1950424
Max25 - München
| Status: | Realisiert |
| Ort: | München |
| BGF: | 2.150 m² |
| LP: | 1 - 9 |
| Jahr: | 2016 |
Die Menterschwaige gehört seit jeher zu Münchens besten Wohnadressen. Hier entsteht in absolut ruhiger Lage ein exklusives Bauvorhaben, das die Formsprache der klassischen Architektur modern interpretiert.
Das konzipierte Projekt liegt in unmittelbarer Nähe zum Isarhochufer, wo idyllische Straßenzüge, repräsentative Villengrundstücke und parkähnliche Gärten das naturnahe Umfeld prägen.
Die neun geplanten Wohnungen, mit drei Meter hohen Decken, massivem Eichenparkett und bodentiefen Fenstern, lassen ein besonderes Ambiente entstehen. Hochwertiges Feinsteinzeug und Designerbäder sorgen für ein Wohngefühl auf hohem Niveau. Zu jeder Einheit gehört außerdem ein eigener Garten, ein großzügiger Balkon, oder eine sonnige Dachterrasse, um die grüne Umgebung genießen zu können.
Visualisierung: a.s.m.d Andreas Schiebel
Fotos: andreas zitt photopgraphy
Neuteilweg 13 – Landsberg am Lech
| Status: | Projektentwicklung |
| Ort: | Landsberg am Lech |
| BGF: | 710 m² |
| LP: | 1 - 4 |
| Jahr: | 2017 |
Nahe der Innenstadt, im Landsberger Westen entstehen zwei Doppelhäuser und ein Einfamilienwohnhaus. Das Grundstück befindet sich in einer ruhigen Seitenstraße. Alle Angebote des täglichen Bedarfs befinden sich in unmittelbarer Nähe. Jede Partei verfügt über zwei eigene Stellplätze und großzügigen Gartenanteil. Entwurfsziel war es, die Gebäude bestmöglich in die Umgebung einzupassen und dennoch etwas Besonderes zu schaffen.
Große bodentiefe Fenster versprechen lichtdurchflutete Wohnräume, welche mit großzügigen und offen gestalteten Grundrissen aufwarten.
Visualisierung: a.s.m.d Andreas Schiebel
Prinz-Ludwig – München
| Status: | Realisiert |
| Ort: | München |
| BGF: | 2200 m² |
| LP: | 1 - 8 |
| Jahr: | 2011 |
Bei dem Objekt handelt es sich um ein Einzeldenkmal welches grundlegend saniert wurde. Dabei sind die zahlreichen originalen Details aus der historischen Bauzeit mit großer Sorgfalt restauriert worden. Ebenso ist die reichverzierte Jugendstilfassade wieder hergestellt. Denkmalgeschützte Bodenbeläge sind aufgearbeitet und weitesgehend erhalten worden. Die historischen Fenster und Türen sind fachgerecht restauriert und instand gesetzt worden, sollte es notwendig sein wurden Türen und Fenster nach historischem Vorbild neu gestaltet.
Das Gebäude ist dem Standart des KfW-Effizienzhaus 55 (Denkmal) angepasst. Im rückwärtigen Hof sind für die zudem Wohnungen neue großzügige Balkone hinzugefügt worden.
Das Gebäude gewann nach der Sanierung den Fassadenpreis der Stadt München.
Visualisierung: Meusch Architekturgrafik
Fotos: andreas zitt photopgraphy
Villa Mauerkircher – München
| Status: | Projektentwicklung |
| Ort: | München |
| BGF: | 450m² |
| LP: | 1 - 4 |
| Jahr: | 2012 |
Im beliebten Münchner Stadtteil Bogenhausen entsteht eine großzügige Stadtvilla mit drei Wohneinheiten, großem Gartenanteil und Dachterrasse. Alle Geschosse sind per Fahrstuhl erreichbar. Tag- und Nachtbereiche sind getrennt angeordnet und ohne Überschneidung nutzbar. Eine großzügige Diele mit fließendem Übergang zu Wohn- und Essbereich bildet das Herzstück jeder Wohnung. Die Ausstattung der Wohnungen ist in gehobener Ausführung, tragende Wände werden in Mauerwerk ausgeführt.
Visualisierung: Architekt Pöhlmann GmbH
RB20 – Unterschleißheim
| Status: | Projektentwicklung |
| Ort: | Unterschleißheim |
| BGF: | 1300m² |
| LP: | 1 - 4 |
| Jahr: | 2008 |
Im Norden von München ist ein viergeschossiger Bürobau mit Tiefgarage geplant.. Der ovale Erschließungsraum ist prägendes Element und Eingangsportal. Der stützenlose Raum kann beliebig bespielt werden, ob als Großraumbüro oder Einzelbüro. Ein außenliegender Verschattung bietet Schutz vor sommerlicher Überhitzung. Das Gebäude ist als Passivhaus ausgelegt, so dass eine Zusatzheitzzeit kaum vorhanden ist.
Garching West – Garching
| Status: | Projektentwicklung |
| Ort: | Garching bei München |
| BGF: | 26800 m² |
| LP: | - |
| Jahr: | 2014 |
Der Bebauungsvorschlag in Garching bei München sieht auf einer Grundstücksfläche von mehr als 38.000m² etwa 27 Reihen- und Doppelhäuser, 144 Wohnungen im Geschosswohnungsbau, sowie 204 Studentenwohnungen vor.
Die Gebäudeanordnung berücksichtigt die Geräusche durch die nahe Autobahn und ist dem Lärmpegel entsprechend entwickelt worden. Zusätzlich wird die neue Siedlung durch einen vorgelagerten, bereits bestehenden Lärmschutzwall geschützt.
Die Fläche könnte man in zwei Bauabschnitte unterteilen, so dass Studentenwohnungen und Teile des Geschosswohnungsbaues zuerst entstehen könnten, dann folgen Reihen- und Doppelhäuser mit eigenem Gartenanteil.
Kieferngarten – München
| Status: | Projektentwicklung |
| Ort: | München |
| BGF: | 300 m² |
| LP: | 1 - 4 |
| Jahr: | 2016 |
In ruhiger Lage im Stadtteil Fröttmaning entstehen hier zwei Doppelhäuser. Bodentiefe Fenster, eine sinnvolle Raumverteilung und ein großer Garten bieten Platz zum Entfalten. Entscheidendes Augenmerk ist dabei die gläserne, zurückgesetzte Fuge, in der die Zugänge, Erschließung und Bäder untergebracht sind. Unter dem Dach eröffnet sich hier ein großräumiger Wintergarten mit Überkopfverglasung, welche zugleich eine optimale Belichtung des Erschließungsraumes ermöglicht.
Visualisierung: Architekt Pöhlmann GmbH
Augusten Hotel - München
| Status: | Realisiert |
| Ort: | München |
| BGF: | 2.800 m² |
| LP: | 1 - 8 |
| Jahr: | 2011 |
Zentral gelegen zwischen Münchner Hauptbahnhof und Königsplatz entsteht ein neues Drei-Sterne-Hotel mit 63 Zimmern und Tiefgarage. Der Bau erfolgt in Massivbauweise mit Stahlbetondecken und -wänden. Vorderhaus und Hinterhaus werden im Erdgeschoss miteinander verbunden und rahmen damit die Frühstücksterrasse im Hof ein. Das Gebäude nimmt die Straßenfluchten auf. An deren Schnittpunkt befindet sich die großzügige Hotellobby mit angrenzendem Frühstücksraum, Serviceräumen und der zentralen vertikalen Erschließungsachse, eine ellipsenförmige Treppe im Gelenkpunkt der Gebäudeteile.
Visualisierung außen: Meusch Architekturgrafik
Visualisierung innen: Architekt Pöhlmann GmbH
Fotos: andreas zitt photography
Airport-Trade-Center - Schwaig
| Status: | Projektentwicklung |
| Ort: | Schwaig, Flughafen München |
| BGF: | 70.000 m² |
| LP: | 1 - 4 |
| Jahr: | 2012 |
In direkter Nähe zum Münchner Flughafen, entsteht hier auf einer Fläche von 32.000 m² ein Hotel, Parkhaus und Flächen für Gewerbe, Läden, Sport und Freizeit. Das Projektplanung sieht eine Entwicklung in einzelnen Bauabschnitten vor.
Visualisierung: Architekt Pöhlmann GmbH
Tankstelle an der Messe - München
| Status: | Realisiert |
| Ort: | Messe München |
| BGF: | 1.380 m² |
| LP: | 1 - 4 |
| Jahr: | 2012 |
In direkter Nähe zur Messe München entsteht, auf einem keilförmigen Grundtück, eine neue Tankstelle inklusive Shop, Bistro, Café, KFZ-Werkstatt und KFZ-Waschbereich. Zusätzlich wird Wohnraum für den Betreiber geschaffen. Die großflächigen Panoramaglasscheiben können medienwirksam genutzt werden und lassen viel Licht ins Innere der Verkaufsräume. Die Erstellung erfolgt als Beton-Stahl-Konstruktion.
Visualisierung: Architekt Pöhlmann GmbH
Hotel Rebstock – Frankfurt am Main
| Status: | Projektentwicklung |
| Ort: | Frankfurt am Main |
| BGF: | 10.060 m² |
| LP: | 1-9 |
| Jahr: | 2012 |
In Frankfurt am Main, zwischen Europaallee und Rebstockpark liegt das Hotel Rebstock. Es entsteht ein Vier-Sterne Hotel mit 202 Zimmern sowie Flächen für den Einzelhandel im Erdgeschoss. Die Tiefgarage im Untergeschoss sieht Stellplätze für ca. 60 PKWs vor. Der Bau wird in Stahlbetonkonstruktion mit vorgehängter hinterlüfteter Glasfassade erstellt . Der Bebauungsplan schrieb eine "Faltungslinie" in der Ansicht vor, welche durch unterschiedlich hohe Pflanzsäulen realisiert wird. Die Rankgerüste erhalten eine Bepflanzung mit Rebstöcken, dessen Laub sich je nach Jahreszeit unterschiedlich präsentiert und dem Gebäude damit eine naturgebundene Variation ermöglicht.
Visualisierung: Architekt Pöhlmann GmbH
Sisi91 – München
| Status: | Realisiert |
| Ort: | München |
| BGF: | 7.450 m² |
| LP: | 1 - 5 |
| Jahr: | 2013 - 2016 |
In direkter Nähe zum Olympiapark in München, im Stadtteil Schwabing, entsteht aus dem ehemaligen Büro- und Verwaltungsbau ein hochwertiger Wohnungsbau mit 62 Einheiten.
Das bestehende Gebäude aus den 60-iger Jahren wurde vollständig entkernt, die Fassade komplett entfernt, so dass lediglich die Stahlbeton-Skelettbauweise übrigblieb.
Straßenseitig wurde eine Doppelfassade mit Wintergärten realisiert, welche der Lärmschutz- und Wärmeschutzertüchtigung gerecht wird. Gartenseitig zum Süd-Westen wurden großzügige Balkone in Stahlbau angebracht, die auch eine optimalen Balkon-Terrassenmöblierung ermöglichen. Das bestehende Flachdach wurde um ein Terrassengeschoß erweitert und ermöglichte die Realisierung von 4 Penthouse-Wohnungen.
Visualisierung: Meusch Architekturgrafik
Apartment-Hotel Baierbrunner – München
| Status: | Projektentwicklung |
| Ort: | München |
| BGF: | 6.235 m² |
| LP: | 1 - 5 |
| Jahr: | 2014 |
Im Münchner Stadtteil Obersendling entsteht ein Apartment Hotel mit 128 Zimmern, 48 Tiefgaragenstellplätzen, zwei erdgeschossigen Büroeinheiten und einer Penthouse-Wohnung im Dach-/ Terrassengeschoss.
Acht oberirdische und zwei unterirdische Geschosse geben dem Gebäude die Grundstruktur. Die Stahlbeton-Skelettbauweise erlaubt große Freiheiten in der inneren Raumaufteilung und ermöglicht eine eventuell spätere Grundrissänderung.
Die Fassade erhält eine Pfosten-Riegelkonstruktion mit bodentiefen Fenstern. Farblich abgesetzte Glasflächen im Bereich der Deckenverblendungen geben der Fassade zudem eine Individualität.
Visualisierung: vis.art 3D Visualisierung
Thurn-und-Taxis – Feldafing
| Status: | Realisiert |
| Ort: | Feldafing |
| BGF: | 400 m² |
| LP: | 1 - 5 |
| Jahr: | 2023 |
Am Starnberger See, auf circa 4700m² Grundstücksfläche, entstehen zwei Doppelhäuser mit großzügiger Solarzone. Die Grundrisse erlauben einen fließenden Übergang von Essen, Wohnen und Arbeiten unter einem Dach. Die besondere Lage am Hang eröffnet für den Grundriss neue Möglichkeiten und einen exponierten Blick auf den See. Jede Doppelhaushälfte hat Zugang zu einem großzügigen Garten mit erhaltenswertem altem Baumbestand aus Eichen und Buchen. Die Gebäude fügen sich durch die Farbgebung und das tiefgezogene Dach zurückhaltend in Natur und Topologie ein, verlieren aber nicht ihren Ansatz sich modern und zeitgemäß zu präsentieren. Großzügig verglaste raumhohe und bodentiefe Hebe-Schiebetüren erweitern den Wohn- bzw. Arbeitsraum bis weit in den Garten.
Visualisierung: a.s.m.d Andreas Schiebel